4 No. Houses, The Grange, Kilmore Village, Wexford

  • Unconditional Online Auction Sale
  • AMV : 650000

FOR SALE BY ONLINE AUCTION 25TH NOVEMBER 2021 at 12noon.

Description

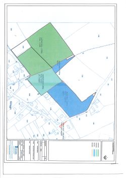
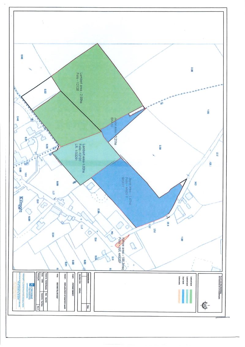
FOUR HOUSES AT GRANGE, KILMORE,
CO WEXFORD (Currently let)
WITH DEVELOPMENT LAND - EXPIRED PLANNING PERMISSION FOR 21 HOUSES

The property is situated just outside Kilmore Village about 12 miles South of Wexford Town in a popular holiday area.

There is a strong demand for residential property in the area for both purchase and rental. There are two 3 bedroom semi-detached houses (Nos. 2 & 24) together with one 4 bedroom detached (No. 22) and one 4 bedroom semi-detached house (No. 17).
Current rental income - €35,400 per annum

OIL FIRED CENTRAL HEATING SYSTEMS

Loading the bidding panel...

Agreement Documents

Additional Documents

Make an Enquiry

Submit an enquiry and someone will be in contact shortly.

 
*  
*  
*
*
*

Share