The property for sale comprises The Castlebridge Parochial House which is a substantial detached residence standing on a site extending to c. 0.4 Hectares/ c. 1 Acre.
The Castlebridge Parochial House which was origibnally built in 1846 on the site of a former church is a three bay two storey residence with a hipped roof and end chimneys with an extension to the rear. The house which extends to c. 230sqm / c. 2,475sqft. has bright and well proportioned accomodation with Ent Hall, Two Reception Rooms, Kitchen/Dining Room, Utility Room, Rear hall and Scullery to the ground floor with four bedrooms and bathroom on the upper floor.
This is a very gracious property with bright pleasant rooms and a sense of tranquillity about it. Although now needing some modernisation and refurbishment this is a fantastic opppurtunity to acquire a susbstantial period residence on a large site which offers excellent potential for further development.
Situated within Castlebridge village, the property is only 1 hour 40 minutes from Dublin Airport, 10 minutes' drive to Wexford town and 30 minutes' drive to Rosslare Euro Port.
The fabulous beaches that Wexford is known for are close by, and the vibrant facilities of Wexford town are on the doorstep. Castlebridge has a strong community with an excellent national school, a selection of pubs and restaurants and a range of artisan shops, post office, chemist and a supermarket.
Viewing is strictly by appointment.
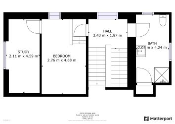
Porch c.2.5m x c.2.6m (c.8'2" x c.8'6")
with tiled floor.
Hall c.2.4m x c.8.7m (c.7'10" x c.28'7")
Reception Room 1 c.3.9m x c.4.5m (c.12'10" x c.14'9")
with open fireplace.
Reception Room 2 c.5.5m x c.4.6m (c.18'1" x c.15'1")
with open fireplace, dual aspect.
Kitchen/Dining Room c.4.7m x c.4.6m (c.15'5" x c.15'1")
with fitted kitchen.
Utility Room c.2.0m x c.2.5m (c.6'7" x c.8'2")
Rear Hall c.1.8m x c.2.4m (c.5'11" x c.7'10")
Rear Porch c.1.7m x c.1.4m (c.5'7" x c.4'7")
Door to rear.
Scullery c.2.9m x c.2.0m (c.9'6" x c.6'7")
First Floor Return
Bedroom 1 c.4.7m x c.2.7m (c.15'5" x c.8'10")
Dressing Room c.4.6m x c.2.1m (c.15'1" x c.6'11")
Bathroom c.4.3m x c.2.0m (c.14'1" x c.6'7")
with wc, whb, shower.
First Floor
Bedroom 2 c.4.6m x c.2.4m (c.15'1" x c.7'10")
Bedroom 3 c.4.6m x c.2.9m (c.15'1" x c.9'6")
Bedroom 4 c.5.8m x c.4.6m (c.19' x c.15'1")
View a Virtual Tour
Submit an enquiry and someone will be in contact shortly.
By setting a proxy bid, the system will automatically bid on your behalf to maintain your position as the highest bidder, up to your proxy bid amount. If you are outbid, you will be notified via email so you can opt to increase your bid if you so choose.
If two of more users place identical bids, the bid that was placed first takes precedence, and this includes proxy bids.
Another bidder placed an automatic proxy bid greater or equal to the bid you have just placed. You will need to bid again to stand a chance of winning.